Actions
Fabrication #10573
ouvertFFPART
Statut:
Terminé
Priorité:
Normal
% réalisé:
100%
Nature du SAV:
N°Dossier:
2024010015
Référence:
SCHULZ
RAL (liste):
BICOLORATION
RAL:
9010B INT / 1247FS EXT
Saisi le:
04/01/2024
Confirmé le:
Dpt:
46
Expédition:
Messagerie
Semaine de livraison:
06
Rapide:
Non
Infos de livraison:
Commandes annexes:
AVEC VR BLOC FUTUROL LIVRAISON SEMAINE 06
PANNEAU CDE LE 23/01 RECEPTION LE 7/02
BB:
OUI
PANO:
OUI
CL:
FR:
3D 6O
PL:
Global affaire (nb heures):
9
Remarques atelier:
TAPEES RAPPORTEES
Accessoires faits:
Oui
Ouvrants vitrés:
Non
Documents clients:
CD 2V:
CD 4V:
CO 2V:
CO 4V:
CO 3V:
GAL 1R 1V:
GAL 1R 2V:
GAL 2R 2V:
GAL 2R 4V:
GAL 3R 3V:
OF1:
OF2:
OB1:
OB2:
PF1:
PF2:
PF1 SERRURE:
PF2 SERRURE:
3
FIXE:
SOUFFLET:
Nb PL:
Fichiers
Actions
#2
Mis à jour par Emilie Dufour il y a environ 2 ans
- N°Dossier changé de 2024011015 à 2024010015
Actions
#3
Mis à jour par Julie Laloi il y a environ 2 ans
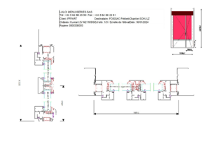
- Fichier COUPE REP 3 SCHULZ.pdf ajouté
- Fichier COUPE REP 2 SCHULZ.pdf ajouté
- Fichier COUPE REP 1 SCHULZ.pdf ajouté
- Fichier ACCUSE_2024010015 SCHULZ.pdf ajouté
Actions
#5
Mis à jour par Benjamin LALOI il y a environ 2 ans
- Statut changé de Nouveau à Appro des matières
- % réalisé changé de 0 à 40
Mis à jour par Julie Laloi il y a environ 2 ans
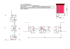
- Fichier SCHULZ LALOI.pdf SCHULZ LALOI.pdf ajouté
- Fichier ACCUSE_2024010015 SCHULZ.pdf ACCUSE_2024010015 SCHULZ.pdf ajouté
- Fichier COUPE REP 2 SCHULZ.pdf COUPE REP 2 SCHULZ.pdf ajouté
- Fichier COUPE REP 1 SCHULZ.pdf COUPE REP 1 SCHULZ.pdf ajouté
- Fichier COUPE REP 3 SCHULZ.pdf COUPE REP 3 SCHULZ.pdf ajouté
Actions
#10
Mis à jour par Julie Laloi il y a environ 2 ans
- Fichier
ACCUSE_2024010015 SCHULZ.pdfsupprimé
Actions
#12
Mis à jour par Julie Laloi il y a environ 2 ans
- Fichier FAB_2024010015.pdf FAB_2024010015.pdf ajouté
Actions
#14
Mis à jour par Sébastien Marée il y a presque 2 ans
- Accessoires faits changé de Non à Oui
Actions
#15
Mis à jour par Sébastien Marée il y a presque 2 ans
- Statut changé de Appro des matières à Débit des barres
- % réalisé changé de 40 à 60
Actions
#16
Mis à jour par Julie Laloi il y a presque 2 ans
- Fichier A.R. COMMANDE N° 6555235.pdf A.R. COMMANDE N° 6555235.pdf ajouté
Actions
#18
Mis à jour par Julie Laloi il y a presque 2 ans
- Statut changé de Débit des barres à Mise à dispo
- % réalisé changé de 60 à 90
Actions
#19
Mis à jour par Julie Laloi il y a presque 2 ans
- Statut changé de Mise à dispo à Livraison
- % réalisé changé de 90 à 100
Actions