Projet

Général

Profil

Actions

Fabrication #10281

ouvert

CASADEI ET FILS MENUISERIES

Ajouté par Emilie Dufour il y a plus de 2 ans. Mis à jour il y a environ 2 ans.

Statut:
Terminé
Priorité:
Normal
% réalisé:

90%

Nature du SAV:
N°Dossier:
2023112111
Référence:
LAFON
RAL (liste):
9010B
RAL:
Saisi le:
06/11/2023
Confirmé le:
Dpt:
46
Expédition:
Messagerie
Semaine de livraison:
10
Rapide:
Non
Infos de livraison:
Commandes annexes:
BB:
PANO:
OUI
CL:

4D 10O

FR:

FIXE 3D

PL:
Global affaire (nb heures):
10
Remarques atelier:

POIGNEE 20° SUR LES 2 VANTAUX
ALLEGES FIXE EN UNE SEULE PARTIE AVEC MENEAUX

Accessoires faits:
Oui
Ouvrants vitrés:
Non
Documents clients:
CD 2V:
CD 4V:
CO 2V:
2
CO 4V:
CO 3V:
2
GAL 1R 1V:
GAL 1R 2V:
GAL 2R 2V:
GAL 2R 4V:
GAL 3R 3V:
OF1:
OF2:
OB1:
OB2:
PF1:
PF2:
PF1 SERRURE:
PF2 SERRURE:
FIXE:
3
SOUFFLET:
Nb PL:

Fichiers

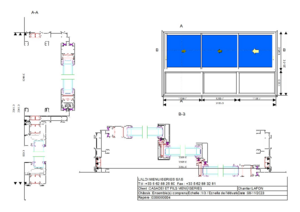
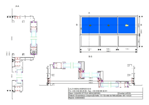
CDE CLIENT.pdf (785 ko) CDE CLIENT.pdf Emilie Dufour, 06/11/2023 12:09
coupe rep 4 lafon.pdf (193 ko) coupe rep 4 lafon.pdf Julie Laloi, 08/11/2023 11:33
coupe rep 3 lafon.pdf (193 ko) coupe rep 3 lafon.pdf Julie Laloi, 08/11/2023 11:33
coupe rep 2 lafon.pdf (183 ko) coupe rep 2 lafon.pdf Julie Laloi, 08/11/2023 11:33
ACCUSE_2023112111 LAFON.pdf (321 ko) ACCUSE_2023112111 LAFON.pdf Julie Laloi, 08/11/2023 11:33
FAB_2023112111.pdf (88,6 ko) FAB_2023112111.pdf Benjamin LALOI, 07/02/2024 10:39

Mis à jour par Benjamin LALOI il y a environ 2 ans

Mis à jour par Benjamin LALOI il y a environ 2 ans

  • Statut changé de Nouveau à Appro des matières
  • % réalisé changé de 0 à 40

Mis à jour par Sébastien Marée il y a environ 2 ans

  • Accessoires faits changé de Non à Oui

Mis à jour par Sébastien Marée il y a environ 2 ans

  • Statut changé de Appro des matières à Débit des barres
  • % réalisé changé de 40 à 60

Mis à jour par Julie Laloi il y a environ 2 ans

  • Statut changé de Débit des barres à Mise à dispo
  • % réalisé changé de 60 à 90

Mis à jour par Julie Laloi il y a environ 2 ans

  • Statut changé de Mise à dispo à Terminé
Actions

Formats disponibles : Atom PDF